C & A DORITIS

ARCHITECTS

 

GREECE, CYPRUS, UK
architects@doritis.gr

 

Project: Dammam Ship Repair Yard, Saudi Arabia. 

Client: Kingdom of Saudi Arabia.
Construction: ARPECO (ARCHIRODON – PETROLA joint venture)
Description: A special island of 210,000m2 was created in shallow waters of Dammam Bay, for the erection of the buildings.
The island is connected to the mainland by a 2.5km – long motorway.
Design: Architectural design was carried out on behalf of Doxiadis Associates.

Project: 12000-unit Housing Project, Ministry of Interior, Saudi Arabia.

Description:Design of 25 new individual housing complexes,self-sufficient small towns, around the country, numbering a total of 12000 residences. Each housing complex comprises, apart from the individual residences, schools, medical centre, shopping centres, athletic facilities, recreation centres, administration buildings, theater, religious building and guest facilities.
Design: C&A Doritis in collaboration with Aba Boutain Consulting Engineers (Saudi Arabia) were responsible for Architectural and Interior Design.
Collaborating design firms for other disciplines:
Ziad Ahmed Zaidan (Saudi Arabia)
Doxiadis Associates (Greece)
Gilbert Commonwealth (UK)
C.R.S. Group, (Houston, USA)

      

Project: 2500-unit Border Guards Housing Project, Saudi Arabia.

Description: Design of 19 new individual housing complexes, self-sufficient small towns, around the country, numbering a total of 2500 residences.
Each housing complex comprises, apart from the individual residences, schools, medical centre, shopping centres, athletic facilities, recreation centres, administration buildings, theater, religious building and guest facilities.
Design: C&A Doritis in collaboration with Aba Boutain Consulting Engineers (Saudi Arabia) were responsible for Architectural and Interior Design, while town planning was carried out by Doxiadis Associates (Greece).

 

Project: V.I.P. Guest Complex, Taif, Saudi Arabia.

Description:First Prize in an architectural competition for the design of a building complex destined for V.I.P. guests in Taif, summer headquarters of the Saudi Government.
Design: C&A Doritis in collaboration with Aba Boutain Consulting Engineers (Saudi Arabia).

Project: Shopping Centre, Glyfada, Athens

    

Project: Three-residence building with roof swimming pool, in Kolonaki, Athens

   

Project: Three two-storey residences with a swimming pool, in Voula, Athens.

Project: Byzantine Museum in Tragana, Greece.

Client: Mount Sinai Foundation

Design assigned following an architectural competition among pre-selected architects.
The Byzantine Museum is part of the Sinai Centre for Byzantine Studies, which also includes a Library building, Conference Centre, a Church, Administration Building and other facilities.

Project: Conference Centre in Tragana, Greece


Client: Mount Sinai Foundation

The Conference Centre is part of the Sinai Centre for Byzantine Studies, which also includes a Library building, a Museum, a Church, Administration Building and other facilities.

 

Project: Office Building, Athens

 

Project: Private office building, Voula, Athens

Project: Office building, Athens.

 

Project: Geniki Bank, Glyfada Branch.

Project: Private residence, Filothei, Athens.

 

Project: Vacation house.

Project: Old industrial building internally adapted for contemporary commercial use.

In collaboration with ARCHICON

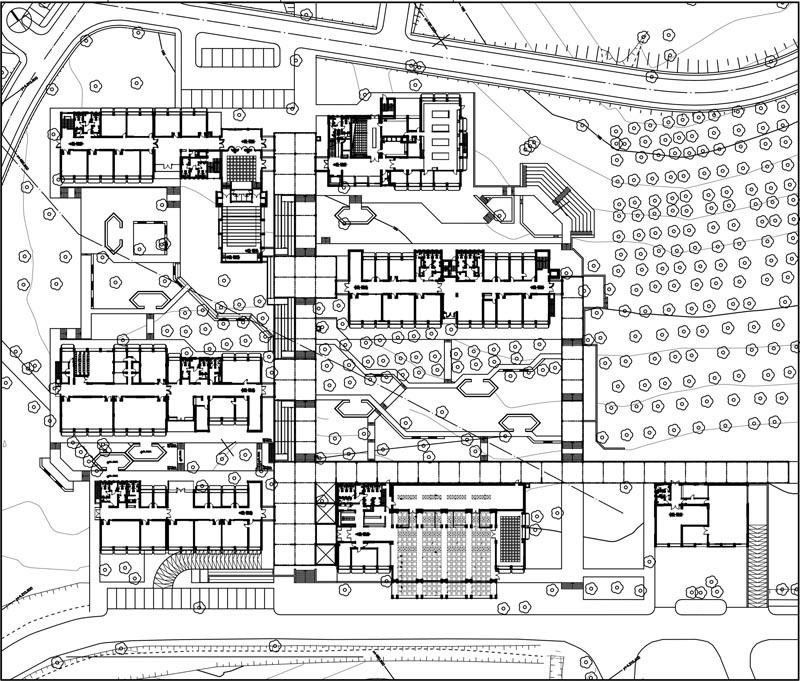
Project: Exhibition & Conference Centre in the Athens Airport area.

In collaboration with AETER & ARCHICON

Description:

Plot 111000 m2, buildings 55000 m2
parking area 100000 m2 for 5000 cars
4 exhibition halls (total area 43750 m2
Exhibition hall 1, area 12000 m2, clear height 7m
Exhibition hall 2, area 12500 m2, clear height 7m
Exhibition hall 3, area 13050 m2, clear height 7m
Exhibition hall 4, area 6200 m2, clear height 12m

2 restaurants, 7 coffee shops,
Conference hall 1 (capacity 600 persons)
Conference hall 2 (capacity 250 persons)
Meeting room 1 (capacity 25 persons)
Meeting room 2 (capacity 50 persons)
Meeting room 3 (capacity 70 persons)
Meeting room 4 (capacity 30 persons)

 

 

Project: Vacation house on the island of Myconos

Project: Office building, Athens

Project: Private residence, Glyfada, Athens.

 

Project: ASPETE, School of Pedagogical and Technological Education, Athens

In collaboration with ARCHICON

  

Project: Two-family residence, Voula, Athens.

Project: Shopping Centre, Voula, Athens.

   

Project: Democritus University of Thrace, Faculty of Engineering

Department of Architectural Engineering, Central Library Building, Xanthi.
In collaboration with G. Asimomitis & K. Tsangridis

                                                                                                           

Project: Multi-level private residence on Lycavitos hill, Athens

Project: Foreign Cultural & Religious building in Athens

 

Project: Convertion of old 70 ft - vessel into a yacht.  Replacement of overstructure

Project: Private residence, Voula, Athens

Project: Smart Park Shopping Centre, Spata, Attica

In collaboration with AETER & ARCHICON

site area: 91000 m2
retail area: 37000 m2
basement: 10600 m2

parking
ground level: 874 cars
roof of buildings: 840 cars
basement: 248 cars
total: 1962 cars